复合土工膜如何施工才能达到好的效果
来源:西藏 新疆 宁夏 四川 云南 贵州 作者:土工布厂家 浏览: 发布日期:2017-10-21
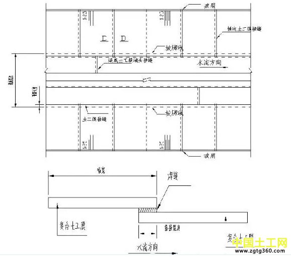
复合土工膜铺设
(1)渠坡:沿渠轴线方向,按先下游后上游、上游幅压下游幅的顺序铺设。铺设时使复合土工膜幅宽与渠轴线方向平行,由坡肩自上而下滚铺至坡脚,中间不应有纵向连接缝,渠坡上的复合土工膜只有横向的连接缝。铺设过程采用编织袋装土覆压,随铺随压,以防止复合土工膜滑移;渠底预留1m 长土工膜进行包裹防护,渠坡顶部同样进行包裹防护,待施工路缘石时再展开。
(2)渠底:使复合土工膜幅宽与渠轴线垂直,沿渠轴线方向按先上游压下游的顺序滚铺。渠底复合土工膜端头缝与端头缝、端头缝与坡面横向接缝应相互错开100cm 以上。
(3)齿槽部位:铺设齿槽部位的复合土工膜时,应松弛适度,且与齿槽贴紧,铺设完毕后及时采用齿槽内的临时支撑固定保温板和土工膜。支撑约2m 左右一个,待混凝土铺筑满槽后再取出,清理干净待用。复合土工膜铺设如图D—D所示。

- 相关文章猜你喜欢:
-
土工布厂家告诉你养护土工布怎么选划算
需要长丝土工布生产厂家在哪里?
购买土工布量大直接找厂家批发价格节省
2019年土工布销量预测
土工布和无纺布有什么不同如何区分
长丝土工布和短丝土工布区别
土工布具体年限寿命多长?
长丝土工布加工工艺你知道吗?
土工布价格由哪些因素决定土工布厂家为
土工布厂家专业解答土工布是什么材料







